✨ OPORTUNIDAD ÚNICA EN PLENO CENTRO ✨
Salamanca - REF. 3554
Local Comercial |  865 m2  |
venta: 1.985.000 €

Descripción

REF: 3554

✨ OPORTUNIDAD ÚNICA EN PLENO CENTRO ✨

Ponemos a la venta un amplio local de 865 m² construidos y 622 m² útiles, muy demandado por inversores gracias a su ubicación estratégica en la zona centro, rodeado de todos los servicios y con un sinfín de posibilidades de negocio.

El local cuenta con una impresionante fachada principal de 31,62 metros lineales con un enorme escaparate, que garantiza máxima visibilidad, además de una fachada trasera de 26,82 metros, con acceso adicional, lo que lo convierte en un espacio único y muy versátil.

Ideal para implantar una clínica de belleza, gimnasio, discoteca, supermercado, centro de formación o cualquier otra actividad que requiera gran superficie y proyección comercial.

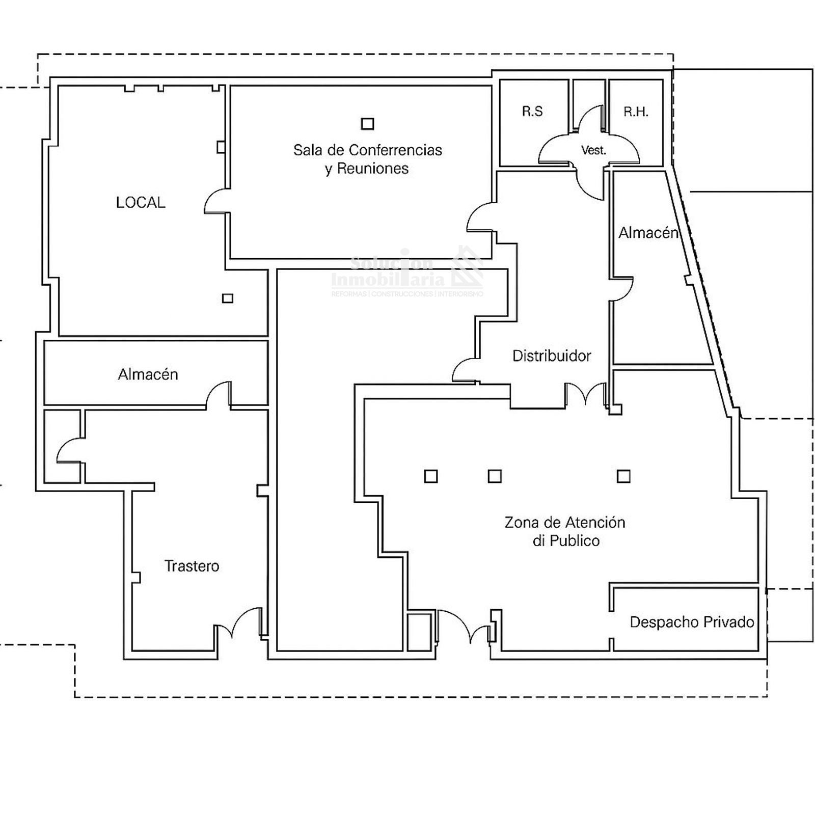
Actualmente se encuentra distribuido como oficinas:

Zona de atención al público

Distribuidor

Despacho privado

Almacén

Aseos

Sala de conferencias y reuniones

Local-almacén

Espacio extra con aseo independiente

Cabe destacar que en realidad se trata de dos locales unidos, lo que multiplica las opciones de redistribución y adaptación según la necesidad del proyecto.

Construido en 1969 y rehabilitado en 1996, el local se encuentra muy bien conservado, cuidado al detalle y en perfecto estado de mantenimiento.

💡 Una inversión segura en una de las mejores zonas de la ciudad, lista para transformar en el negocio que imaginas.

¡No dejes pasar esta oportunidad! Contacta con Solución Inmobiliaria para más información y visitas.

Certificado de eficiencia energética en trámite por la propiedad.

Este anuncio no es vinculante y puede contener errores; se muestra a título informativo y no contractual.

SI LO DESEA PUEDE CONTACTAR MEDIANTE WHATSAPP 671 88 54 81 O LLAMENOS 923 125 489

Características
Precio Venta 1.985.000 €
Construidos 865 m2
Adaptado
Luz
Acceso discapacitados

Escalas de eficiencia


Eficiencia Emisiones: EMISIONES
Eficiencia Consumo: EFICIENCIA CONSUMO
FUNCIÓN QUE OBTIENE EFICIENCIA
Inmobiliaria
Solución Inmobiliaria
Paseo del Doctor Villarroel,, 13
Contáctanos

Si deseas más información sobre esta propiedad, por favor, rellena el formulario.