Local en venta en Valdelagua (Santa Marta) de 145 m², totalmente exterior | Vía de la Plata Inmobiliaria
Santa Marta De Tormes - REF. 1228
Local Comercial |  145 m2  |  1 Baños  |
venta: 120.000 €

Descripción

🏢 Ubicación estratégica en Valdelagua

Vía de la Plata Inmobiliaria presenta este local comercial en la urbanización Valdelagua, una de las zonas residenciales más exclusivas y consolidadas del entorno de Salamanca.

Ubicado junto a la farmacia y el restaurante de la urbanización, se encuentra en un punto de paso habitual, lo que le otorga gran visibilidad y flujo constante de vecinos.

Valdelagua cuenta con una comunidad consolidada de aproximadamente más de 1.000 chalets, lo que genera una base de clientes potenciales muy interesante para cualquier actividad.

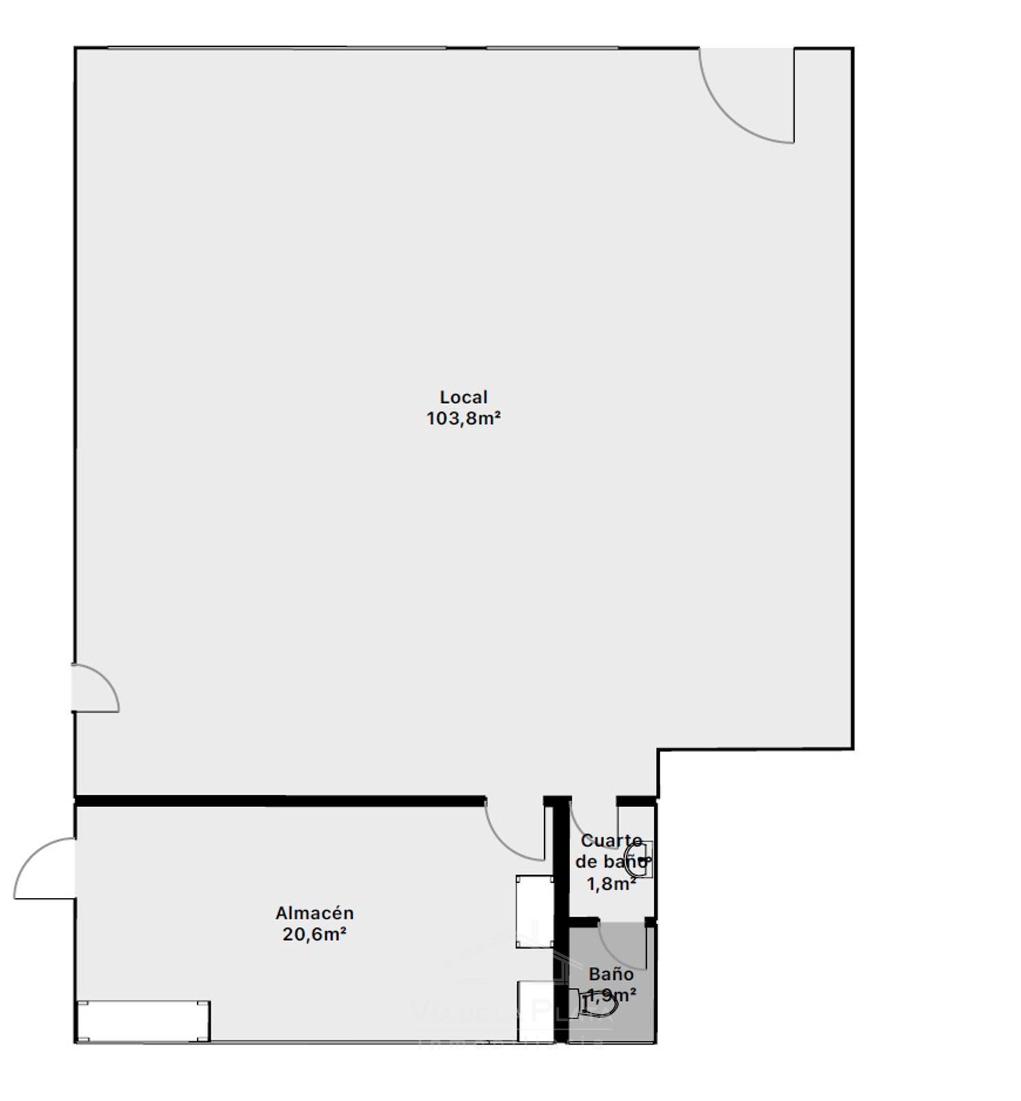
📐 Distribución del local

El local cuenta con 145 m² construidos, distribuidos de forma funcional:

✅ Sala principal diáfana de 105 m², con múltiples posibilidades de uso

✅ Almacén de 20 m²

✅ Baño de 4 m²

Una distribución versátil que permite adaptarlo fácilmente a distintos tipos de negocio.

✨ Características

✅ Grandes ventanales, que aportan luminosidad y visibilidad comercial

✅ Local totalmente exterior

✅ Espacio amplio y diáfano

✅ Buena presencia y fachada comercial

🏬 Uso anterior

El local ha sido utilizado anteriormente como supermercado, lo que demuestra su capacidad para albergar actividades comerciales con afluencia de público.

📍 Entorno

Valdelagua es una urbanización de alto nivel, situada en el término de Santa Marta de Tormes, caracterizada por:

✅ Viviendas unifamiliares

✅ Entorno tranquilo y residencial

✅ Perfil de residente estable

✅ Cercanía a Salamanca

Un entorno ideal para negocios de proximidad: alimentación, servicios, despacho profesional o actividad comercial.

✨ Oportunidad

Se trata de un local con:

✅ Ubicación consolidada

✅ Buena visibilidad

✅ Amplia superficie

✅ Entorno con demanda potencial

Ideal tanto para emprendedores como para inversores que busquen un activo con recorrido.

Características principales

🏢 Tipo de inmueble: Local comercial

📐 Superficie: 145 m²

🧱 Sala principal: 105 m² diáfana

📦 Almacén: 20 m²

🚿 Baño: 4 m²

🌞 Totalmente exterior

🪟 Grandes ventanales

📍 Ubicación: Valdelagua (Santa Marta de Tormes)

🏬 Uso anterior: supermercado

Características
Precio Venta 120.000 €
Construidos 145 m2
Baños 1
Calefacción No tiene
Adaptado
Luz
Agua
Teléfono
Acceso discapacitados


Ubicación
Escalas de eficiencia


Eficiencia Emisiones: EMISIONES
Eficiencia Consumo: EFICIENCIA CONSUMO
FUNCIÓN QUE OBTIENE EFICIENCIA
Inmobiliaria
Vía de la Plata Inmobiliaria
Paseo de la Estación, 68, bajo 2
Contáctanos

Si deseas más información sobre esta propiedad, por favor, rellena el formulario.