🏢 OPORTUNIDAD DE INVERSIÓN: LOCAL CON LICENCIA Y PROYECTO PARA APARTAMENTOS TURÍSTICOS – CALLE POLLO MARTÍN N.º 34
Salamanca - REF. 3693
Local Comercial |  74 m2  |  1 Baños  |
venta: 159.900 €

Descripción

🏢 OPORTUNIDAD DE INVERSIÓN: LOCAL CON LICENCIA Y PROYECTO PARA APARTAMENTOS TURÍSTICOS – CALLE POLLO MARTÍN Nº 34 (JUNTO A AVENIDA PORTUGAL)

Especial inversores y promotores inmobiliarios.

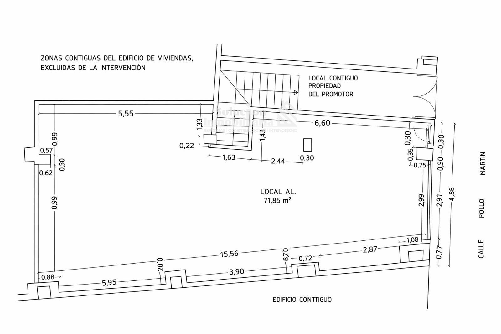
Se pone a la venta local situado en la calle Pollo Martín nº 34, junto a la Avenida Portugal, con una superficie aproximada de 74 m² construidos y unos 68 m² útiles, que cuenta con licencia urbanística concedida y proyecto técnico aprobado para el cambio de uso a apartamentos turísticos.

Esto supone una gran ventaja, ya que el comprador podrá desarrollar el proyecto sin necesidad de iniciar trámites administrativos complejos, reduciendo significativamente tiempos y costes.

El inmueble se vende con toda la documentación necesaria, lo que permite comenzar las obras en un plazo muy corto una vez realizada la compra.

Características principales del inmueble:

✅ Licencia en vigor, lista para ejecutar el proyecto

📐 Proyecto técnico incluido, elaborado por profesionales y conforme a normativa

🏗️ Desarrollo de apartamentos turísticos modernos, diseñados para maximizar ocupación y rentabilidad

📍 Ubicación estratégica en calle Pollo Martín nº 34, junto a la Avenida Portugal, zona consolidada, muy bien comunicada y con todos los servicios

📏 Superficie aproximada de 74 m² construidos y 68 m² útiles

💼 Inmueble especialmente atractivo para inversión turística o patrimonial

Ventajas de la inversión:

✔ Ahorro significativo de tiempo en gestiones urbanísticas

✔ Reducción de costes previos al inicio de obra

✔ Mayor seguridad jurídica al contar con licencia concedida

✔ Alta demanda de alojamiento turístico en la zona

Una oportunidad ideal para inversores que buscan un proyecto prácticamente llave en mano, con un elevado potencial de rentabilidad tanto en explotación turística como en venta del activo.

📞 Contacte con nosotros para ampliar información, recibir planos y documentación técnica o concertar una visita sin compromiso.

No deje pasar esta excelente oportunidad de inversión inmobiliaria.

Características
Precio Venta 159.900 €
Construidos 74 m2
Baños 1
Luz
Agua
Galería

Escalas de eficiencia


Eficiencia Emisiones: EMISIONES
Eficiencia Consumo: EFICIENCIA CONSUMO
FUNCIÓN QUE OBTIENE EFICIENCIA
Inmobiliaria
Solución Inmobiliaria
Paseo del Doctor Villarroel,, 13
Contáctanos

Si deseas más información sobre esta propiedad, por favor, rellena el formulario.